München-Trudering! Erstbezug – Moderne 2-ZKB in bester Lage mit Aufzug, Fußbodenheizung, Stellplatz!
81827 München-Trudering, Wohnung zur Miete
Bildergalerie
Für diese Immobilie sind keine Fotos vorhanden.
Kontaktdaten
-
NameElla Theurer
-
FirmaIrchenhauser & Spreng Immobilien GmbH
-
AdresseRiederweg 5
85276 Pfaffenhofen -
E-Mail Direkt
-
Tel. Durchwahl
Objektdaten
-
Objekt IDAP7-6
-
ObjekttypWohnung
-
AdresseAskaripfad 7
81827 München-Trudering -
Etage1
-
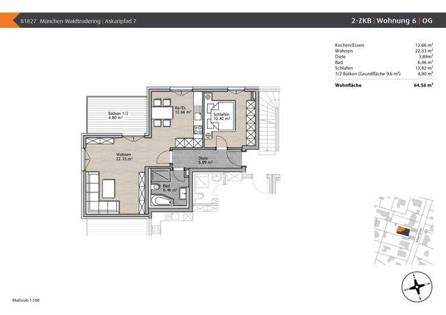
Wohnfläche ca.64,56 m²
-
Zimmer2
-
Baujahr2026
-
Stellplätze gesamt1
-
AufzugPersonenaufzug
-
Balkon/TerrasseBalkon
-
BödenFliesenboden, Parkettboden
-
HeizungsartLuft-/Wasser-Wärmepumpe
-
SanitärBad mit Dusche, Bad mit Wanne
-
Sonstiges/WohnenKelleranteil
-
ZustandErstbezug, gehoben
-
Kaltmiete1.590,00 EUR
-
Nebenkosten200,00 EUR
-
Warmmiete1.790,00 EUR
Ausstattung / Merkmale
- ✓ Bad mit Wanne
- ✓ Balkon
- ✓ Kelleranteil
- ✓ Personenaufzug
Objektbeschreibung
Sonstiges
Preisinformation
1 Carportplatz
Lage
Ruhige und naturnahe Lage im Askaripfad 7 in München-Waldtrudering!
Sämtliche Geschäfte des täglichen Bedarfs (Bäcker, Metzger, Supermarkt, Apotheke, etc.), befinden sich in unmittelbarer Nähe und sind in Kürze erreichbar.
Die nächste S-Bahnhaltestelle (Gronsdorf), befindet sich ca. 1,3 km vom Objekt entfernt und ist fußläufig in ca. 15 Minuten zu erreichen.
Die Entfernung zum Waldtruderinger Forst beträgt ca. 900 Meter.
Ausstattung
- Balkon mit ca. 9,60 m² Grundfläche
- Aufzug
- Videosprechanlage
- Fußbodenheizung mit Raumthermostaten
- Elektrische Rollläden
- Bodengleich geflieste Dusche
- Echtholzböden und hochwertige Großformat-Fliesen
- Küche mit Fenster
- Kellerabteil
- Waschmaschinenanschluss im eigenen Keller
- Carport auf Wunsch
Objekt
Erstbezug! Moderne 2-Zimmerwohnung mit Balkon (ca. 9,60 m²) und toller Ausstattung in bester Lage von Waldtrudering/München.
Auf Wunsch kann ein Carport für 70,00 € dazu gemietet werden. Bei Bedarf kann auch eine Wallbox dazu gemietet werden.
Die Wohnung ist ab dem 01.03.2026 bezugsfertig.
Sonstiges
Dieses Exposé ist eine Vorabinformation. Vorstehende Angaben beruhen auf Auskünften der Eigentümer, wir übernehmen hierfür sowie für Tippfehler keine Haftung!
Der Energieausweis wird aktuell erstellt und liegt zur Besichtigung vor!
Energiepass
Energieausweis wird bei Besichtigung vorgelegt.
Stichworte
Carport vorhanden, Nutzfläche: 76,70 m², Anzahl der Schlafzimmer: 1, Anzahl der Badezimmer: 1, Anzahl Balkone: 1, Balkon-Terrassen-Fläche: 9,60 m², Bundesland: Bayern, 2 Etagen
Lage
Die dargestellte Position der Immobilie ist nur eine ungefähre Angabe.

