3-ZKB Obergeschoss-Whg. mit ca. 9,90 m² Süd-Balkon, elektr. Rollläd., FBH., Videosprecha. u. TG-STP!
85276 Pfaffenhofen an der Ilm, Etagenwohnung zur Miete
Kontaktdaten
-
NameElla Theurer
-
FirmaIrchenhauser & Spreng Immobilien GmbH
-
AdresseRiederweg 5
85276 Pfaffenhofen -
E-Mail Direkt
-
Tel. Durchwahl
Objektdaten
-
Objekt IDMS49-5
-
ObjekttypenEtagenwohnung, Wohnung
-
Adresse85276 Pfaffenhofen an der Ilm
-
Etage1
-
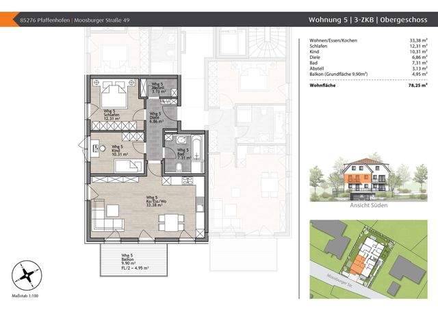
Wohnfläche ca.78,25 m²
-
Zimmer3
-
Baujahr2026
-
Stellplätze gesamt1
-
AufzugPersonenaufzug
-
Balkon/TerrasseBalkon
-
BödenFliesenboden, Laminat
-
EnergieträgerElektro
-
SanitärBad mit Dusche, Bad mit Wanne
-
Sonstiges/WohnenAbstellraum, Kelleranteil
-
ZustandErstbezug, gehoben
-
Kaltmiete1.240,00 EUR
-
Nebenkosten200,00 EUR
-
Warmmiete1.500,00 EUR
Ausstattung / Merkmale
- ✓ Bad mit Wanne
- ✓ Balkon
- ✓ Kelleranteil
- ✓ Personenaufzug
Objektbeschreibung
Sonstiges
Preisinformation
1 Tiefgaragenstellplatz, Miete: 60,00 EUR
Lage
Zentrale Lage in der Moosburger Straße 49 in Pfaffenhofen.
Der Bahnhof, Kindergärten, ein Bäcker sowie das Zentrum von Pfaffenhofen, sind fußläufig in Kürze zu erreichen.
Eine Stadtbus-Haltestelle befindet sich in unmittelbarer Nähe.
Ausstattung
- Aufzug
- Balkon mit ca. 9,90 m² Grundfläche nach Osten, Süden und Westen ausgerichtet
- Fußbodenheizung mit Raumthermostaten
- Elektrische Rollläden
- Videosprechanlage
- Tiefgaragenstellplatz
- Bodengleich geflieste Dusche
- Hochwertiger Waschtisch mit Vigour-Designunterschrank
- Küche mit Fenster
- Abstellraum
- Echtholzböden und hochwertige Fliesen
- Gemeinschaftswaschraum im Keller
Objekt
Bei der angebotenen Wohnung handelt es sich um eine Neubau 3-Zimmer Wohnung im 1. Obergeschoss, mit einem Balkon (ca. 9,90 m² Grundfläche) nach Osten, Süden und Westen ausgerichtet in zentraler Lage von Pfaffenhofen.
Zu der Wohnung gehört ein Tiefgaragenstellplatz sowie ein Kellerabteil.
Die Wohnung ist ab dem 01. Mai 2026 bezugsfertig.
Die Bauausführung erfolgt in massiver Ziegelbauweise mit Wärmedämmverbundsystem sowie 3fach verglasten Fenstern.
Beheizt wird die Wohnanlage über eine Wärmepumpe.
Energieausweis:
Der Energieausweis wird gerade erstellt und liegt zur Besichtigung vor.
Sonstiges
Dieses Exposé ist eine Vorabinformation. Vorstehende Angaben beruhen auf Auskünften der Eigentümer oder Bauträger, wir übernehmen hierfür sowie für Tippfehler keine Haftung! Ein Rechtsverbindlicher Kaufvertrag kommt nur durch notarielle Beurkundung zustande. Die Maklerprovision und Kaufnebenkosten errechnen sich aus dem beurkundeten Kaufpreis.
Stichworte
Tiefgarage vorhanden, Nutzfläche: 83,20 m², Anzahl der Schlafzimmer: 2, Anzahl der Badezimmer: 1, Anzahl Balkone: 1, 2 Etagen
Lage
Die dargestellte Position der Immobilie ist nur eine ungefähre Angabe.















