Reichertshausen! 2-ZKB EG-Whg. mit 48 m² Hobbykeller/Privatgarten/FBH/elektr. Rollläd./Video./Keller
85293 Reichertshausen, Wohnung zum Kauf
Kontaktdaten
-
NameDaniel Spreng
-
FirmaIrchenhauser & Spreng Immobilien GmbH
-
AdresseRiederweg 5
85276 Pfaffenhofen -
E-Mail Direkt
-
Tel. Durchwahl
-
Mobil
Objektdaten
-
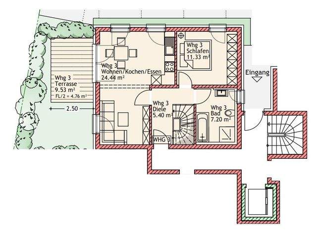
Objekt IDBW 2 - Whg. 3
-
ObjekttypWohnung
-
AdresseBergweg 2
85293 Reichertshausen -
EtageEG
-
Wohnfläche ca.53,13 m²
-
Zimmer2
-
Baujahr2026
-
Stellplätze gesamt1
-
AufzugPersonenaufzug
-
Balkon/TerrasseBalkon, Garten
-
BödenFliesenboden, Parkettboden
-
EnergieträgerElektro
-
Preisinfoprovisionsfrei
-
SanitärBad mit Dusche, Bad mit Fenster, Bad mit Wanne
-
Sonstiges/WohnenKelleranteil
-
WohnungslageErdgeschoss
-
ZustandErstbezug, gehoben
-
Kaufpreis295.000 EUR
Ausstattung / Merkmale
- ✓ Bad mit Wanne
- ✓ Balkon
- ✓ Garten
- ✓ Kelleranteil
- ✓ Personenaufzug
Objektbeschreibung
Sonstiges
Preisinformation
1 Carportplatz, Kaufpreis: 17.500,00 EUR
Lage
Zentrale Lage im Bergweg 2 in Reichertshausen!
Ausstattung
- Aufzug
- Interner Hobbykeller mit ca. 48,58 m² Grundfläche
- Terrasse mit ca. 9,53 m² Grundfläche nach Süden und Westen ausgerichtet
- Privatgarten mit ca. 20 m² (inkl. Terrasse)
- Videosprechanlage
- Fußbodenheizung mit Raumthermostaten
- Elektrische Rollläden
- Bodengleich geflieste Dusche
- Hochwertiger Waschtisch mit Vigour-Designunterschrank (Model Clivia in verschiedenen Farbvarianten)
- Echtholzböden und hochwertige Fliesen
- Bad mit Fenster
- Küche mit Fenster
- Waschmaschinenanschluss im eigenen Keller
Objekt
Bei der angebotenen Wohnung handelt es sich um eine 2-Zimmer Erdgeschoss Wohnung, sowie einem internen Hobbykeller mit ca. 48,58 m² Grundfläche, der in drei Einzelräume unterteilt ist.
Außerdem vorhanden ist ein Privatgarten (ca. 20 m²) mit Terrasse.
Die Bauausführung erfolgt in massiver Ziegelbauweise mit Wärmedämmverbundsystem, sowie 3fach verglasten Fenstern.
Beheizt wird das Mehrfamilienhaus mit einer Luft-/Wasser-Wärmepumpe.
Der Baubeginn ist für Mitte 2026 vorgesehen, die Fertigstellung wird ca. Ende 2027 erfolgen.
Auf dem Grundstück entsteht ein Mehrfamilienhaus mit 8 Wohneinheiten, auf Wunsch erhalten Sie gerne das Gesamtexposé.
Energieausweis:
Der Energieausweis wird gerade erstellt und liegt zur Besichtigung vor.
Sonstiges
Rechtlicher Hinweis
Dieses Exposé ist eine Vorabinformation. Vorstehende Angaben beruhen auf Auskünften der Eigentümer oder Bauträger, wir übernehmen hierfür sowie für Tippfehler keine Haftung! Ein Rechtsverbindlicher Kaufvertrag kommt nur durch notarielle Beurkundung zustande. Die Kaufnebenkosten errechnen sich aus dem beurkundeten Kaufpreis.
Energiepass
Energieausweis wird bei Besichtigung vorgelegt.
Stichworte
Carport vorhanden, Nutzfläche: 106,48 m², Anzahl der Schlafzimmer: 1, Anzahl der Badezimmer: 1, Anzahl Balkone: 1, Balkon-Terrassen-Fläche: 9,53 m², Gartenfläche: 20,00 m², Bundesland: Bayern
Lage
Sie sehen gerade einen Platzhalterinhalt von Google Maps. Um auf den eigentlichen Inhalt zuzugreifen, klicken Sie auf die Schaltfläche unten. Bitte beachten Sie, dass dabei Daten an Drittanbieter weitergegeben werden.
Mehr InformationenDie dargestellte Position der Immobilie ist nur eine ungefähre Angabe.









