Pfaffenhofen-Reisgang! 2-ZKB OG-Whg. mit West-Balkon! FBH, elektr. Rollläden, Videosprechanlage, TG!
85276 Pfaffenhofen an der Ilm, Etagenwohnung zum Kauf
Kontaktdaten
-
NameDaniel Spreng
-
FirmaIrchenhauser & Spreng Immobilien GmbH
-
AdresseRiederweg 5
85276 Pfaffenhofen -
E-Mail Direkt
-
Tel. Durchwahl
-
Mobil
Objektdaten
-
Objekt IDMS 21 - Whg. 14
-
ObjekttypenEtagenwohnung, Wohnung
-
AdresseMünchner Straße 21
85276 Pfaffenhofen an der Ilm -
Etage1
-
Wohnfläche ca.54,52 m²
-
Zimmer2
-
Baujahr2026
-
Stellplätze gesamt1
-
AufzugPersonenaufzug
-
Balkon/TerrasseBalkon
-
BödenFliesenboden, Parkettboden
-
EnergieträgerFernwärme, Holz
-
Preisinfoprovisionsfrei
-
SanitärBad mit Dusche, Bad mit Wanne
-
Sonstiges/WohnenKelleranteil
-
ZustandErstbezug, gehoben
-
Kaufpreis369.000 EUR
Ausstattung / Merkmale
- ✓ Bad mit Wanne
- ✓ Balkon
- ✓ Kelleranteil
- ✓ Personenaufzug
Objektbeschreibung
Sonstiges
Preisinformation
1 Tiefgaragenstellplatz, Kaufpreis: 28.000,00 EUR
Lage
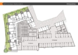
Naturnahe Lage in der Münchner Straße 21 in Pfaffenhofen-Reisgang.
Der Bahnhof von Pfaffenhofen ist in wenigen Minuten zu Fuß erreichbar.
Ausstattung
- Aufzug
- Balkon nach Westen ausgerichtet, mit ca. 6,78 m² Grundfläche
- Fußbodenheizung mit Raumthermostaten
- Elektrische Rollläden
- Videosprechanlage
- Bodengleich geflieste Dusche im Bad
- Hochwertiger Waschtisch mit Vigour-Designunterschrank (Model Clivia in verschiedenen Farbvarianten)
- Echtholzböden und hochwertige Fliesen
- Kellerabteil
- Waschmaschinenanschluss im eigenen Keller
Objekt
Bei der angebotenen Wohnung handelt es sich um eine 2-Zimmer Wohnung im 1. Obergeschoss, mit einem ca. 6,78 m² großen West-Balkon (Loggia).
Die Bauausführung erfolgt in massiver Ziegelbauweise mit Wärmedämmverbundsystem, sowie 3fach verglasten Fenstern.
Beheizt wird die Wohnanlage über einen Fernwärmeanschluss.
Der Baubeginn ist für Frühjahr 2026 vorgesehen, die Fertigstellung wird ca. im Frühjahr 2028 erfolgen.
Auf dem Grundstück entsteht ein Mehrfamilienhaus mit Tiefgarage und Aufzug, mit insgesamt 40 Wohneinheiten.
Auf Wunsch erhalten Sie gerne das Gesamtexposé inkl. Baubeschreibung und Preisliste.
Energieausweis:
Der Energieausweis wird gerade erstellt und liegt zur Besichtigung vor.
Sonstiges
Rechtlicher Hinweis
Dieses Exposé ist eine Vorabinformation. Vorstehende Angaben beruhen auf Auskünften der Eigentümer oder Bauträger, wir übernehmen hierfür sowie für Tippfehler keine Haftung! Ein Rechtsverbindlicher Kaufvertrag kommt nur durch notarielle Beurkundung zustande. Die Kaufnebenkosten errechnen sich aus dem beurkundeten Kaufpreis.
Energiepass
Energieausweis wird bei Besichtigung vorgelegt.
Stichworte
Tiefgarage vorhanden, Nutzfläche: 63,15 m², Anzahl der Schlafzimmer: 1, Anzahl der Badezimmer: 1, Anzahl Balkone: 1, Balkon-Terrassen-Fläche: 6,78 m², Bundesland: Bayern, 3 Etagen
Lage
Sie sehen gerade einen Platzhalterinhalt von Google Maps. Um auf den eigentlichen Inhalt zuzugreifen, klicken Sie auf die Schaltfläche unten. Bitte beachten Sie, dass dabei Daten an Drittanbieter weitergegeben werden.
Mehr InformationenDie dargestellte Position der Immobilie ist nur eine ungefähre Angabe.






















