München! 3-ZKB OG-Whg. + 12 m² Ost-Balkon! FBH, elektr. Rollläd., Videosprechanlage, Aufzug, Keller!
81735 München, Etagenwohnung zum Kauf
Bildergalerie
Für diese Immobilie sind keine Fotos vorhanden.
Kontaktdaten
-
NameDaniel Spreng
-
FirmaIrchenhauser & Spreng Immobilien GmbH
-
AdresseRiederweg 5
85276 Pfaffenhofen -
E-Mail Direkt
-
Tel. Durchwahl
-
Mobil
Objektdaten
-
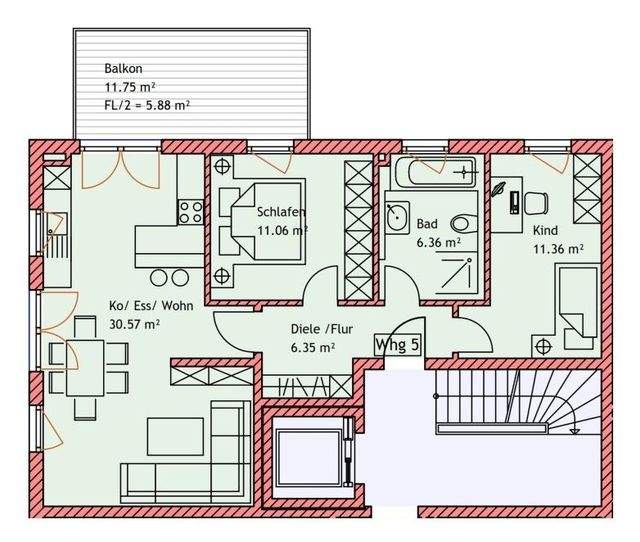
Objekt IDNAS 6b - Whg. 5
-
ObjekttypenEtagenwohnung, Wohnung
-
AdresseNiederalmstraße 6b
81735 München -
Etage1
-
Wohnfläche ca.70,51 m²
-
Zimmer3
-
Baujahr2026
-
Stellplätze gesamt1
-
AufzugPersonenaufzug
-
Balkon/TerrasseBalkon
-
BödenFliesenboden, Parkettboden
-
EnergieträgerElektro
-
Preisinfoprovisionsfrei
-
SanitärBad mit Dusche, Bad mit Fenster, Bad mit Wanne
-
Sonstiges/WohnenKelleranteil
-
ZustandErstbezug, gehoben
-
Kaufpreis669.000 EUR
Ausstattung / Merkmale
- ✓ Bad mit Wanne
- ✓ Balkon
- ✓ Kelleranteil
- ✓ Personenaufzug
Objektbeschreibung
Sonstiges
Preisinformation
1 Carportplatz, Kaufpreis: 28.000,00 EUR
Lage
Ruhige und naturnahe Lage zwischen Waldtrudering und Ramersdorf-Perlach.
Ausstattung
- Aufzug
- Balkon nach Osten ausgerichtet, mit ca. 11,75 m² Grundfläche
- Fußbodenheizung mit Raumthermostaten
- Elektrische Rollläden
- Videosprechanlage
- Bodengleich geflieste Dusche im Bad
- Hochwertiger Waschtisch mit Vigour-Designunterschrank (Model Clivia in verschiedenen Farbvarianten)
- Bad mit Fenster
- Küche mit Fenster
- Echtholzböden und hochwertige Fliesen
- Kellerabteil
- Waschmaschinenanschluss im eigenen Keller
- Einzelgarage, Carport oder Außenstellplatz auf Wunsch
Objekt
Bei der angebotenen Wohnung handelt es sich um eine 3-Zimmer Wohnung im 1. Obergeschoss, mit einem ca. 11,75 m² großen Ost-Balkon.
Die Bauausführung erfolgt in massiver Ziegelbauweise mit Wärmedämmverbundsystem, sowie 3fach verglasten Fenstern.
Beheizt wird die Wohnanlage mit einer Wärmepumpe.
Der Baubeginn ist für Frühjahr 2026 vorgesehen, die Fertigstellung wird ca. im Sommer 2027 erfolgen.
Auf dem Grundstück entsteht ein Mehrfamilienhaus mit Tiefgarage und Aufzug, mit insgesamt 8 Wohneinheiten.
Auf Wunsch erhalten Sie gerne das Gesamtexposé inkl. Baubeschreibung und Preisliste.
Energieausweis:
Der Energieausweis wird gerade erstellt und liegt zur Besichtigung vor.
Sonstiges
Rechtlicher Hinweis
Dieses Exposé ist eine Vorabinformation. Vorstehende Angaben beruhen auf Auskünften der Eigentümer oder Bauträger, wir übernehmen hierfür sowie für Tippfehler keine Haftung! Ein Rechtsverbindlicher Kaufvertrag kommt nur durch notarielle Beurkundung zustande. Die Kaufnebenkosten errechnen sich aus dem beurkundeten Kaufpreis.
Energiepass
Energieausweis wird bei Besichtigung vorgelegt.
Stichworte
Carport vorhanden, Nutzfläche: 76,39 m², Anzahl der Schlafzimmer: 2, Anzahl der Badezimmer: 1, Anzahl Balkone: 1, Balkon-Terrassen-Fläche: 11,75 m², Bundesland: Bayern, 2 Etagen
Lage
Die dargestellte Position der Immobilie ist nur eine ungefähre Angabe.

